Ristorante Bar "Reef", Sansone (LI)
L’idea Progettuale nasce dall’esigenza di realizzare un’opera che diventasse una struttura a servizio della spiaggia di Sansone Isola d’Elba, fra le dodici spiagge più belle d’Italia, secondo la nota rivista di viaggi americana Condé Nast Traveler.
Il progetto quindi si è andato ad inserire in un contesto naturalistico sottoposto a tutela paesaggistica e da qui: quali precauzioni, quali attenzioni, quali aspetti da mettere in risalto?
Il nuovo ristorante – bar Reef Sansone è collocato sul promontorio che si affaccia sulla spiaggia, all’interno della Costa Bianca di Portoferraio nel Parco Nazionale dell’Arcipelago Toscano.
Il grande pregio del contesto naturalistico, le sue caratteristiche peculiari e la volontà di relazionarsi ad esse hanno influenzato l’intero processo generativo del progetto.
Per questi motivi si sono ricercati, proprio nel contesto naturalistico, continui suggerimenti per soluzioni morfologiche e materiche, indirizzando le scelte progettuali sull’integrazione fra ambiente e costruito.
I nuovi volumi e gli spazi funzionali sono stati inseriti nel contesto naturalistico, privilegiando l’utilizzo di materiali naturali, mentre la progettazione del verde è stata pensata per disegnare aree di relax ombreggiate che, grazie ai contorni sfumati dello stesso, permette alla macchia mediterranea stessa di penetrare nel progetto, diventando così un ulteriore esempio di ricerca di integrazione con la dimensione naturale.
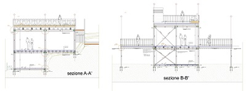
La struttura a telaio del manufatto, realizzata completamente a secco in ferro e legno prefabbricato, ci ha permesso di realizzare l'opera senza eseguire movimenti terra. Pure i solai di calpestio interni e le terrazze esterne, realizzate in pagliolato in legno, sono sollevati da terra per non modificare il profilo originario del terreno sottostante.
Per non contaminare il sito durante la fase di realizzazione, si è optato per l’utilizzo di materiali naturali come i pannelli isolanti in fibra di legno, per le pareti esterne a telaio, e i materassini in lana vergine di pecora per le pareti interne e la correzione dei ponti termici.
Tutto questo materiale montato a secco, permetterà al momento dello smontaggio dell'intera struttura, di lasciare lo stato dei luoghi come trovato in origine.
Il corpo di fabbrica è realizzato su tre livelli, nel primo si trovano i locali tecnici e i servizi igienici, nel secondo la cucina e l’area bar con le due terrazze esterne e al terzo la terrazza belvedere con giardino pensile.
Come rivestimento esterno sono state montate pareti ventilate in legno naturale di colore simile alle piante di leccio che circondano la struttura, sempre per meglio integrare paesaggisticamente l’intero edificio. Oltre alle pareti ventilate in legno, due orti verticali ricoprono in gran parte due facciate dell’edificio per i quali sono state scelte fioriture e piante aromatiche che crescono spontaneamente in questi luoghi. La scelta di piante autoctone e utilizzabili in cucina è frutto della ricerca di una soluzione utile e allo stesso tempo originale e creativa. Un piccolo giardino pensile sulla terrazza racchiude in sé alcune piante della macchia mediterranea per ritrovare e saper riconoscere la vegetazione tipica che circonda la struttura.
Le acque meteoriche, che rappresentano una fonte rinnovabile e necessitano di semplici ed economici trattamenti per il proprio riutilizzo, sono state raccolte in un apposito deposito, posizionato fuori terra, permettendo così di non realizzare le opere di sbancamento necessarie per la sua posa. L’intero ciclo di recupero viene reimpiegato per i consumi per le pulizie e l'innaffiamento dei giardini.
Tutti gli impianti sono di nuova generazione e con l’utilizzo del fotovoltaico e accorgimenti bioclimatici, l’edificio è risultato in classe energetica A4.
DATI STRATIGRAFICI
Per quel che concerne le stratigrafie delle tamponature esterne, sono stati utilizzati due pannelli in fibra di legno della ditta Naturalia-Bau della tipologia Swiss Therm.
In particolare, dall’interno verso l’esterno, sono stati posati:
- 100 mm di pannello Swiss Therm 150, avente conducibilità pari a 0,039 W/(mK) e massa volumica 150 kg/mc;
- 19 mm di pannello Swiss Therm 225, avente conducibilità pari a 0,046 W/(mK) e massa volumica 225 kg/mc.
I due pannelli indicati, componenti principali della stratigrafia delle superfici opache delimitanti i volumi riscaldati verso l’esterno, hanno permesso di raggiungere un valore di trasmittanza pari a 0,253 W/(mqK), con una trasmittanza periodica di 0,096 W/(mqK) ed uno sfasamento dell’onda termica pari a -10,2 h.
Per quel che concerne la correzione dei ponti termici in corrispondenza delle putrelle metalliche facenti funzione di pilastri e travi, ad incremento delle prestazioni energetiche della struttura, in aggiunta alla stratigrafia sopra riportata, sono stati inseriti materassini in lana di pecora della ditta Manifattura Maiano tipo Naturtherm – WO 20.50.
Ad incremento delle prestazioni acustiche, il medesimo materiale a base di lana di pecora, è stato utilizzato come riempimento delle intercapedini dei tramezzi interni alla struttura realizzati con pannelli in cartongesso.
Stratigrafia

Dati progetto
| LOCATION | ITALY – PORTOFERRAIO (LI) |
| DESIGNER | ARCH. MASSIMILIANO PARDI |
| PROJECT YEAR | 2017 |
| SUSTAINABILITY | ING. ALESSANDRA RANDO |
| STRUCTURES | ING. ELVIO BOLANO - ING. LORENZO MELLINI |
| LANDSCAPE | AGR. ALESSANDRA PUCCINI |
| LIGTHING | PER. IND. FRANCESCO D'ERRICO |
| COLLABORATORS | ARCH. ALICE CIPRIANI |
| RENDER | GEOM. MARCO PARDI |
| PHOTO | STEFANO MUTI |
| ENERGETIC CERTIFIER | ARCH. ALESSANDRA MONCINI |
| CONSULTANTS | ARCH. CRISTINA ROTTA |
| CLIENT | CAMPEGGIO LA SORGENTE - PORTOFERRAIO (LI) ISOLA D'ELBA |
| PROJECT MANAGERS | ARCH. MASSIMILIANO PARDI |
| SUPPLIERS | LAM AMBIENTE S.R.L. - TECNO SYSTEM - SAGLAM COSTRUZIONI - EDIL GREEN S.R.L. - AEROTERMICA IMPIANTI DI MURONI G. & C. S.N.C. - C.S.C. S.R.L. - ELBA AGRARIA & C. S.A.S. - GES GROUP S.R.L. |
Project facts
DATES
DESIGN SERVICE: NOVEMBER 2015
PRELIMINARY PROJECT: MAY 2016
EXECUTIVE PROJECT: DECEMBER 2016
BUILDING OPENING: JULY 2017
DIMENSIONS
TOTAL PROJECT SURFACE: 71,68 MQ
BUILDING HEIGHT: 6 MT
BUILDING CUBATURE: 265,60 MC
FLOOR NR: 2
CONSTRUCTIONS
STRUCTURE: FERRO E LEGNO COSTRUZIONE A SECCO
ROOFING: TERRAZZA CON GIARDINO PENSILE
FRONTS: PARETI VENTILATE IN LEGNO IN GARAPA
FLOORING: DOGHE IN LEGNO IN GARAPA PER ESTERNO E RESINE CEMENTO WALLCRETE E WALLPAPER PER INTERNI
Regione:Toscana

















